PORODIČNA KUĆA AVDIĆ

PORODIČNA KUĆA AVDIĆ

 

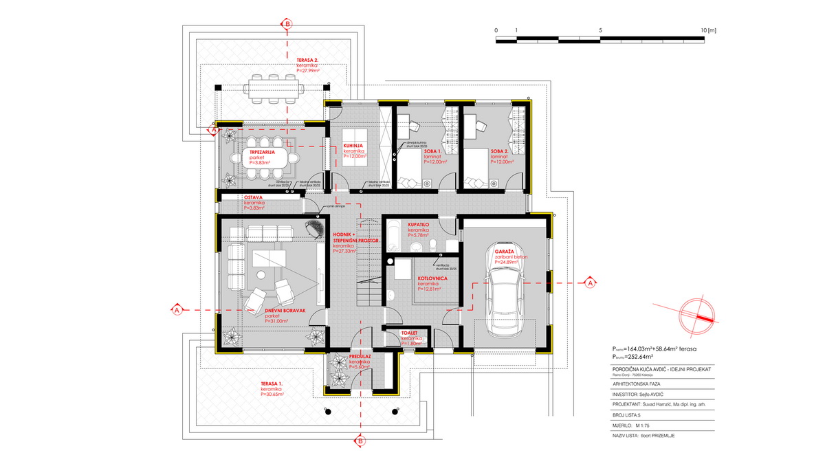
Porodična kuća Avdić

Lokacija: Rainci Donji, Kalesija

Kategorija: Stambeni objekti

Status: U izgradnji

 

+387 (0) 61 423 453

+385 (0)91 557 1235

 

Linkedin

 

Facebook

 

Twitter

 

suvad@hamzic.ba