PORODIČNA KUĆA SANEL HAMZIĆ

PORODIČNA KUĆA SANEL HAMZIĆ

 

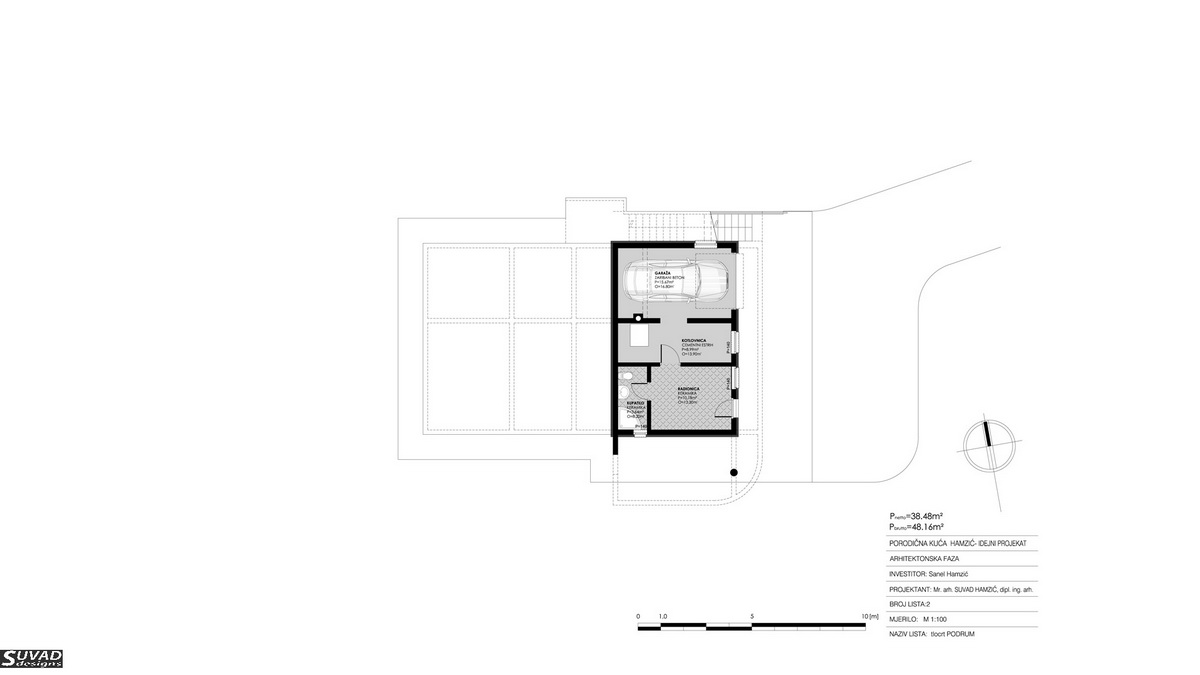
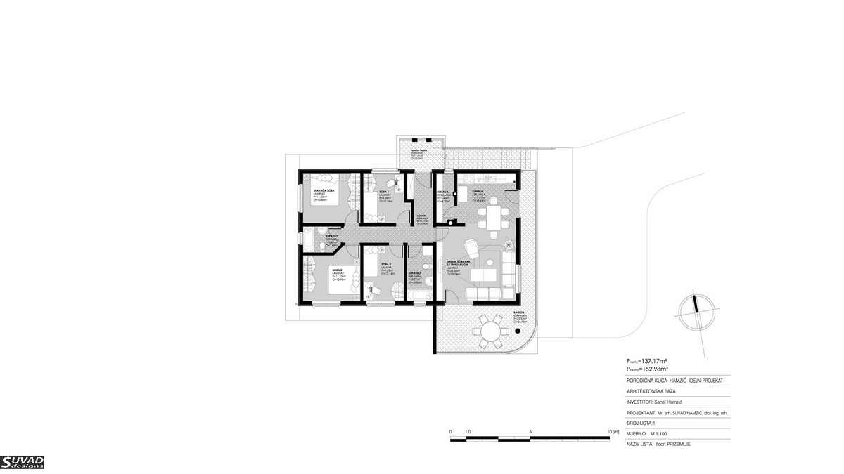
Porodična kuća Sanel Hamzić

Lokacija: Miljanovci, Kalesija

Kategorija: Stambeni objekti

Status: U izgradnji

 

+387 (0) 61 423 453

+385 (0)91 557 1235

 

Linkedin

 

Facebook

 

Twitter

 

suvad@hamzic.ba